Italiano
119.000 €

BILOCALE VIA AURILETTO

2 locali in vendita • Rivoli - Via Auriletto, 6
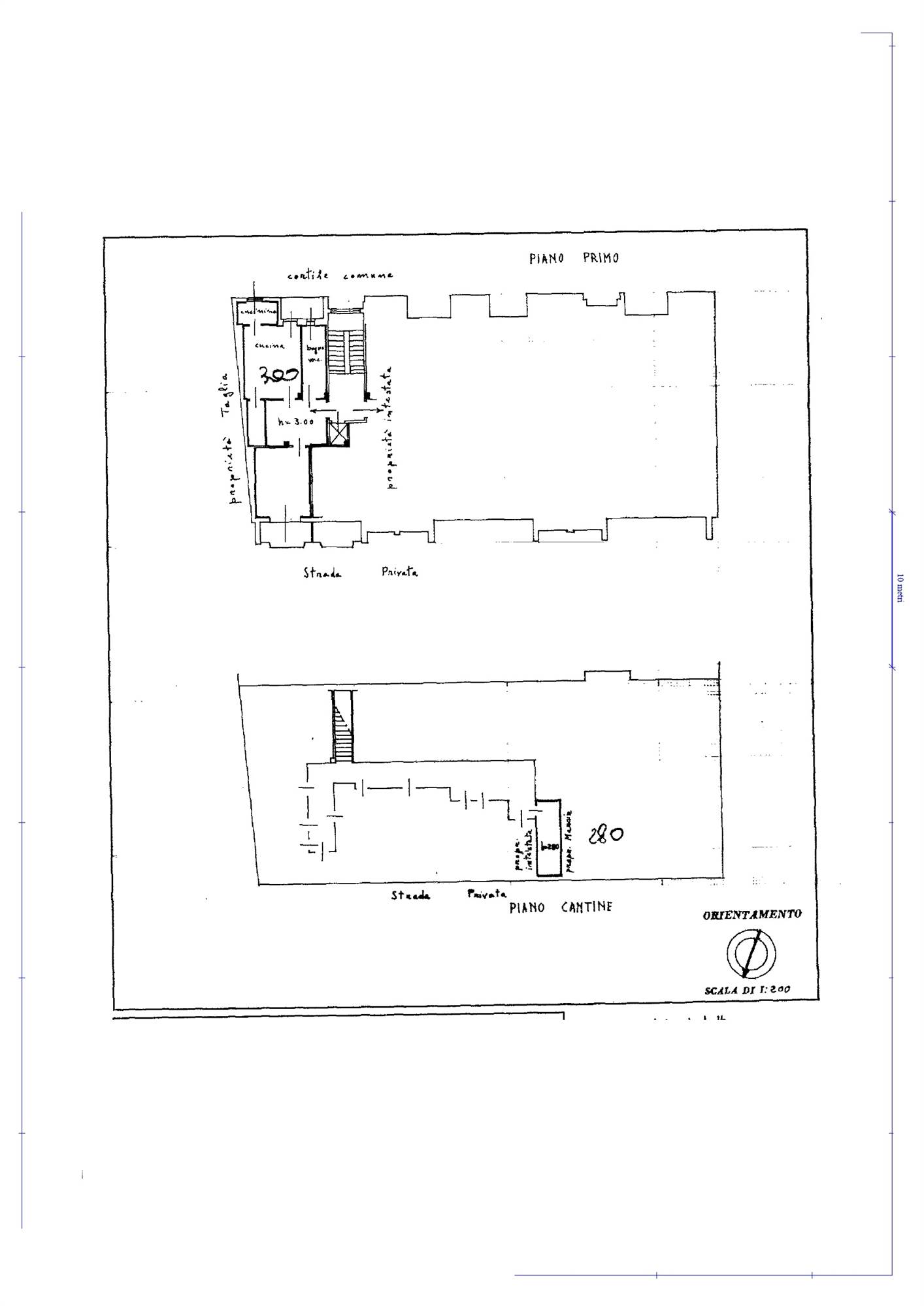
RIVOLI, zona centrale, a due passi dalla Coop di Via Auriletto vendesi bilocale ristrutturato ed arredato sito al primo piano (con ascensore), composto di ingresso, tinello, cucinino, camera da letto, servizio, ripostiglio, 2 balconi e cantina.
Ambienti di dimensioni generosi, ottima luminosità in quanto l'affaccio è aperto su entrambi i lati.
Possibilità di ammodernare la distribuzione degli spazi tramite creazione di un open space.
Immediatamente disponibile. Possibilità di box auto nelle vicinanze.

SEPSE CONDOMINIALI: 1000 euro ca annui
SPESE RISCALDAMENTO: 750 euro ca annui
FOTOGRAFIE: visionabili più fotografie sul sito www.bariccoezinna.it
VIDEO: visionabili sul sito www.bariccoezinna.it
PLANIMETRIA: scaricabile in PDF dal sito www.bariccoezinna.it
COMPENSO DI MEDIAZIONE : 4% FINITO sul prezzo di acquisto, alla data prevista per il contratto preliminare.
PRIVACY : ai sensi del Regolamento UE 2016/679 (Informativa sul trattamento dei dati personali) l’Agenzia immobiliare informa che la scheda informativa è consultabile sul sito web al link: http://www.bariccoezinna.it/it/privacy-policy
.
Il presente stampato ha valore puramente indicativo e non costituisce elemento contrattuale né presupposto contrattuale.
Tutte le misure eventualmente riportate devono considerarsi indicative.
.
Baricco & zinnA – agenti immobiliari a Rivoli, attivi nel mercato immobiliare da oltre quarantacinque anni, sono riconosciuti come un'organizzazione esperta e affidabile. Si distinguono per serietà e integrità nel rapporto con i clienti. In ogni aspetto del loro lavoro, Baricco & zinnA aderiscono a principi di trasparenza, lealtà e professionalità. Iscritti alla FIMAA Torino dal 1979.
Parliamo anche Inglese, Francese e Spagnolo.

L'ESPERIENZA VALE DI PIÙ. DAL 1979.
Caratteristiche principali
Codice
2505800
Città
Rivoli
Categoria
2 locali
Prezzo
119.000 €
Locali
2
Camere
1
Bagni
1
Mq
62
Mq calpestabili
58
Balconi
2
Mq Balcone
8
Piano
1
Classe energetica
D
161,94
Stato Immobile
Ristrutturato
Grado
Medio
Posizione
Centro
Panorama
Vista Aperta
Orientamento
Sud Nord
Lati Liberi
2
Giardino
No
Arredi
Arredato
Tipo Soggiorno
Tinello
Tipo Cucina
Cucinotto
Riscaldamento
Conta Calorie
Tipo Riscaldam.
Caldaia
Tipo Impianto
Radiatori
Fonte Energetica
Metano
Acqua Calda
Autonoma
Raffrescamento
No
Infissi
PVC Doppio Vetro
Serramenti
Buono
Persiana
Tapparella Legno
Pavim. Giorno
Ceramica
Pavim. Notte
Ceramica
Pavim. Cucina
Ceramica
Pavim. Bagno
Ceramica
Accesso Disabili
No
Accesso interno disabili
Non accessibile

Accessori: Ascensore, Doppi Vetri, Ripostiglio

Mappa
Via Auriletto 6, Rivoli (TO)
Video
Richiedi informazioni
Invia
Condividi su
Cookie preference