Italiano
135.000 €

APPARTAMENTO RISTRUTTURATO NEL CENTRO STORICO RIVOLESE

3 locali in vendita • Rivoli (Centro Storico) - Via Monte Grappa, 2
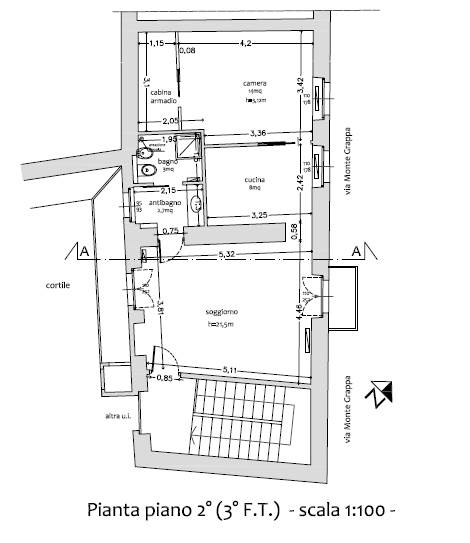
RIVOLI, Centro Storico, in Piazza San Rocco, vendesi appartamento finemente rinnovato con salone, cucina, una camera da letto con cabina armadio e servizio. Doppio balcone e cantina.
Ubicato al secondo ed ultimo piano (senza ascensore), è stato completamente ristrutturato con nuovi impianti, infissi (porte e finestre) e pavimenti. L'abbattimento di alcune pareti interni lo rendono luminoso ed aeroso con doppia esposizione nel salone.
Riscaldamento autonomo, aria condizionata, piccolo condominio, bassissime spese condominiali.

SPESE CONDOMINIALI : €./anno 80 (esclusa acqua)
SPESE DI RISCALDAMENTO : autonomo
FOTOGRAFIE: visionabili più fotografie sul sito www.bariccoezinna.it
VIDEO: visionabili sul sito www.bariccoezinna.it
PLANIMETRIA: scaricabile in PDF dal sito www.bariccoezinna.it
CONTATTO: informazioni dirette al numero 347.7209322 Alberto
COMPENSO DI MEDIAZIONE : 4% FINITO sul prezzo di acquisto, alla data prevista per il contratto preliminare.
PRIVACY : ai sensi del Regolamento UE 2016/679 (Informativa sul trattamento dei dati personali) l’Agenzia immobiliare informa che la scheda informativa è consultabile sul sito web al link: http://www.bariccoezinna.it/it/privacy-policy
.
Il presente stampato ha valore puramente indicativo e non costituisce elemento contrattuale né presupposto contrattuale.
Tutte le misure eventualmente riportate devono considerarsi indicative.
.
Baricco & zinnA – agenti immobiliari a Rivoli, attivi nel mercato immobiliare da oltre quarantacinque anni, sono riconosciuti come un'organizzazione esperta e affidabile. Si distinguono per serietà e integrità nel rapporto con i clienti. In ogni aspetto del loro lavoro, Baricco & zinnA aderiscono a principi di trasparenza, lealtà e professionalità. Iscritti alla FIMAA Torino dal 1979.
Parliamo anche Inglese, Francese e Spagnolo.

L'ESPERIENZA VALE DI PIÙ. DAL 1979.
Caratteristiche principali
Codice
2504800
Città
Rivoli (Centro Storico)
Categoria
3 locali
Prezzo
135.000 €
Spese condominiali
200 € / anno
Locali
3
Camere
1
Bagni
1
Mq
65
Mq calpestabili
60
Balconi
2
mq Terrazzo
8
Piano
2
Classe energetica
E
196,82
Stato Immobile
Ristrutturato
Grado
Signorile
Posizione
Centro Storico
Panorama
Vista Aperta
Orientamento
Nord Ovest Sud Est
Lati Liberi
2
Giardino
Comune
Arredi
Arredato a Nuovo
Tipo Soggiorno
Salone
Tipo Cucina
Semi Abitabile
Riscaldamento
Autonomo
Tipo Riscaldam.
Caldaia
Tipo Impianto
Radiatori
Fonte Energetica
Metano
Acqua Calda
Autonoma
Raffrescamento
Split
Infissi
PVC Doppio Vetro
Serramenti
Ottimo
Persiana
Tapparella Legno
Pavim. Giorno
Ceramica
Pavim. Notte
Ceramica
Pavim. Cucina
Ceramica
Pavim. Bagno
Ceramica
Accesso Disabili
No
Accesso interno disabili
Non accessibile

Accessori: Doppi Vetri, Porta Blindata, Ripostiglio

Mappa
Via Monte Grappa 2, Rivoli (TO)
Video
Richiedi informazioni
Invia
Condividi su
Cookie preference