Italiano
900 € / mese

UFFICI DIREZIONALE E AREA OPERATIVA DI 340MQ.

Laboratorio in affitto • Pianezza (Oltredora) - Via Collegno , 45 bis
PIANEZZA proponiamo in affitto in Via Collegno, un’ampia e funzionale soluzione immobiliare di complessivi 340 mq, situata al primo piano di un complesso industriale/commerciale d'eccellenza.

La posizione è il vero punto di forza: al confine strategico con il Comune di Collegno, a pochi istanti dall'accesso alla tangenziale e immersa in un’area servita da centri commerciali e servizi logistici, ideale per garantire massima visibilità e facilità di collegamento.

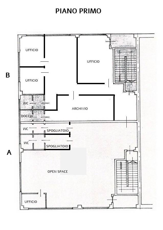
L'immobile nasce dall'unione di due unità adiacenti e speculari, offrendo una suddivisione interna razionale e già pronta all'uso:
• Area Direzionale e Uffici: Uno spazio dedicato alla gestione aziendale con reception per l'accoglienza clienti, 3 ampi locali ufficio privati e un disimpegno centrale;
• Area Operativa & Showroom: Un grande locale open-space di 170 mq, straordinariamente luminoso grazie alle ampie vetrate perimetrali, perfetto per piccole lavorazioni artigianali, esposizione prodotti o magazzino;
• Servizi e Comfort: L’unità dispone di tripli servizi, completi di docce e zona spogliatoio, oltre a un locale magazzino interno dedicato.

Indipendenza e Accessibilità: Accesso tramite ingressi indipendenti con scala privata. È presente la possibilità di installare un montacarichi per agevolare la movimentazione merci.
Luminosità: Gli ambienti godono di una luce naturale costante, rendendo gli spazi di lavoro salubri e piacevoli.
Impiantistica: Riscaldamento autonomo per una gestione personalizzata ed efficiente dei costi.
Parcheggio: Ampia area parcheggio comune situata all’interno del cortile recintato.
Categoria Catastale: D/7.
Libero subito.

Perché scegliere questo immobile?
Questa soluzione di 340 mq rappresenta l'opportunità ideale per aziende che cercano una sede che integri sotto lo stesso tetto un'area amministrativa di rappresentanza e un'area operativa flessibile, senza i costi e i vincoli dei piani terra, ma con tutta la praticità logistica necessaria.
.
CONTRATTO : commerciale 6+6
DEPOSITO CAUZIONALE : 3 mensilità
SPESE DI RISCALDAMENTO : autonomo
SPESE CONDOMINIALI : non sussistono, solo spese di consumo
SPESE DI CONSUMO : luce, gas, acqua, tassa rifiuti, a proprio carico
ARREDAMENTO: vuoto
DOCUMENTAZIONE RICHIESTA : documenti personali (carta d'identità, codice fiscale); documentazione aziendale (visura camerale, procure, ecc.); documentazione di reddito (unico – 730 con ricevuta di trasmissione, busta paga, bilancio, ecc.); ricevuta ultime due mensilità pagate (nel caso si sia già in locazione)
CEDOLARE SECCA : No
FOTOGRAFIE: visionabili più fotografie sul sito www.bariccoezinna.it
PLANIMETRIA: scaricabile dal sito www.bariccoezinna.it
VIDEO: visionabili sul sito www.bariccoezinna.it
CONTATTO: informazioni dirette al numero 329.3141007 Carlo
COMPENSO DI MEDIAZIONE : 2 mensilità + IVA.
PRIVACY : ai sensi del Regolamento UE 2016/679 (Informativa sul trattamento dei dati personali) l’Agenzia immobiliare informa che la scheda informativa è consultabile sul sito web al link http://www.bariccoezinna.it/it/privacy-policy
.
Il presente stampato ha valore puramente indicativo e non costituisce elemento contrattuale né presupposto contrattuale.
Tutte le misure eventualmente riportate devono considerarsi indicative.
.
Baricco & zinnA – agenti immobiliari a Rivoli, attivi nel mercato immobiliare da quasi cinquant'anni, sono riconosciuti come un'organizzazione esperta e affidabile. Si distinguono per serietà e integrità nel rapporto con i clienti. In ogni aspetto del loro lavoro, Baricco & zinnA aderiscono a principi di trasparenza, lealtà e professionalità.
Parliamo anche Inglese, Francese e Spagnolo.

L'ESPERIENZA VALE DI PIÙ. DAL 1979.
Caratteristiche principali
Codice
2601201
Città
Pianezza (Oltredora)
Categoria
Laboratorio
Prezzo
900 € / mese
Locali
6
Bagni
4
Mq
360
Mq calpestabili
340
Piano
1
Classe energetica
E
196,01 kWh/m³a
Stato Immobile
Discrete Condizioni
Grado
Medio
Posizione
Periferia
Panorama
Vista Aperta
Orientamento
Est Sud Ovest
Lati Liberi
3
Arredi
Non Arredato
Riscaldamento
Autonomo
Tipo Riscaldam.
Caldaia
Tipo Impianto
Radiatori
Fonte Energetica
Metano
Acqua Calda
Autonoma
Infissi
Metallo
Serramenti
Discreto
Pavim. Bagno
Ceramica
Pavimento
Ceramica
Cauzione
Tre Mesi
Canoni Anticipati
Un Mese
Tipo Contratto
6+6 Anni
Destinazione
Artigianale
Tipo Registr.
Tradizionale
Metri altezza capannone
3,05
Mq uffici
60

Accessori: Bagno Handicap

Mappa
Via Collegno 45 bis, Pianezza (TO)
Video
Richiedi informazioni
Invia
Condividi su
Cookie preference