Italiano
370 € / mese

BILOCALE IN CENTRO

2 locali in affitto • Rivoli - via Leumann, 21
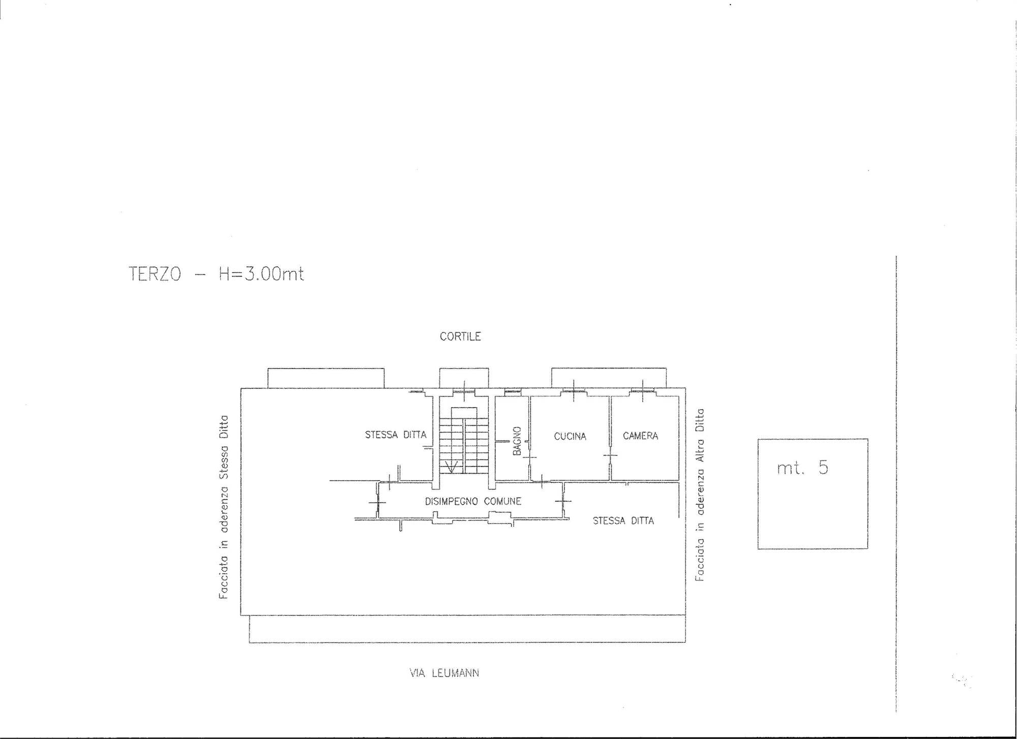
RIVOLI, zona centrale, a due passi da Corso Susa, affittasi appartamento sito al terzo piano (no ascensore) composto di ingresso living su soggiorno, cucina a vista, camera da letto, servizi e balcone. Arredato.
Portoncino blindato.
.
CONTRATTO : residenziale 4+4
DEPOSITO CAUZIONALE : 3 mensilità
SPESE DI RISCALDAMENTO : €. 95 per 6,5 rate
SPESE CONDOMINIALI : €./mese 20 (+ 10 acqua procapite)
ACCONTO SPESE : €./mese 70
SPESE DI CONSUMO : luce, gas, tassa rifiuti, a proprio carico
ARREDAMENTO: arredato
DOCUMENTAZIONE RICHIESTA : documenti personali (carta d'identità, codice fiscale); documentazione di reddito (unico – 730 con ricevuta di trasmissione, busta paga, ecc.); ricevuta ultime due mensilità pagate (nel caso si sia già in locazione)
CEDOLARE SECCA : SI - Canone fisso, nessuna spesa di registrazione
ANIMALI : accettati di piccola taglia
FOTOGRAFIE: visionabili più fotografie sul sito www.bariccoezinna.it
PLANIMETRIA: scaricabile direttamente dal sito www.bariccoezinna.it
COMPENSO DI MEDIAZIONE : 2 mensilità + IVA.
PRIVACY : ai sensi del Regolamento UE 2016/679 (Informativa sul trattamento dei dati personali) l’Agenzia immobiliare informa che la scheda informativa è consultabile sul sito web al link http://www.bariccoezinna.it/it/privacy.html
.
Il presente stampato ha valore puramente indicativo e non costituisce elemento contrattuale ne' presupposto contrattuale.
Tutte le misure eventualmente riportate devono considerarsi indicative.
.
La Baricco & zinnA – Agenti immobiliarI – di Rivoli, nel settore della compravendita immobiliare, rappresenta da trentacinque anni un'organizzazione esperta ed affidabile, che si distingue per la serietà e correttezza nei rapporti con la clientela. In ogni fase operativa la Baricco & zinnA si ispira a criteri di trasparenza, di lealtà e di massima professionalità.
L'ESPERIENZA VALE DI PIÙ. DAL 1979.
Caratteristiche principali
Codice
2506500
Città
Rivoli
Categoria
2 locali
Prezzo
370 € / mese
Spese condominiali
840 € / anno
Locali
2
Camere
1
Mq
35
Mq calpestabili
29
Balconi
1
Mq Balcone
8
Classe energetica
F
185,12
Life Style
Friendly
Stato Immobile
Buono
Grado
Medio
Posizione
Centro
Panorama
Vista Aperta
Orientamento
Ovest Est
Lati Liberi
1
Giardino
No
Arredi
Arredato
Tipo Soggiorno
Soggiorno
Tipo Cucina
Angolo Cottura
Riscaldamento
Centralizzato
Tipo Riscaldam.
Caldaia a Condensazione
Tipo Impianto
Radiatori
Fonte Energetica
Metano
Acqua Calda
Autonoma
Infissi
Legno
Serramenti
Discreto
Persiana
Tapparella Legno
Pavim. Giorno
Graniglia
Pavim. Notte
Graniglia
Pavim. Cucina
Graniglia
Pavim. Bagno
Ceramica
Cauzione
Tre Mesi
Canoni Anticipati
Un Mese
Tipo Contratto
4+4 Anni
Accesso Disabili
No
Accesso interno disabili
Non accessibile
Tipo Registr.
Cedolare Secca

Accessori:

Mappa
via Leumann 21, Rivoli (TO)
Richiedi informazioni
Invia
Condividi su
Cookie preference